VENDU-TERRAIN A BÂTIR AVEC PERMIS ACCEPTE POUR 2 MAISONS LEERNES (Fontaine-l'Évêque)
- VENDU-TERRAIN A BÂTIR AVEC PERMIS ACCEPTE POUR 2 MAISONS
- X
- X
ID: 6484001
Vendu
































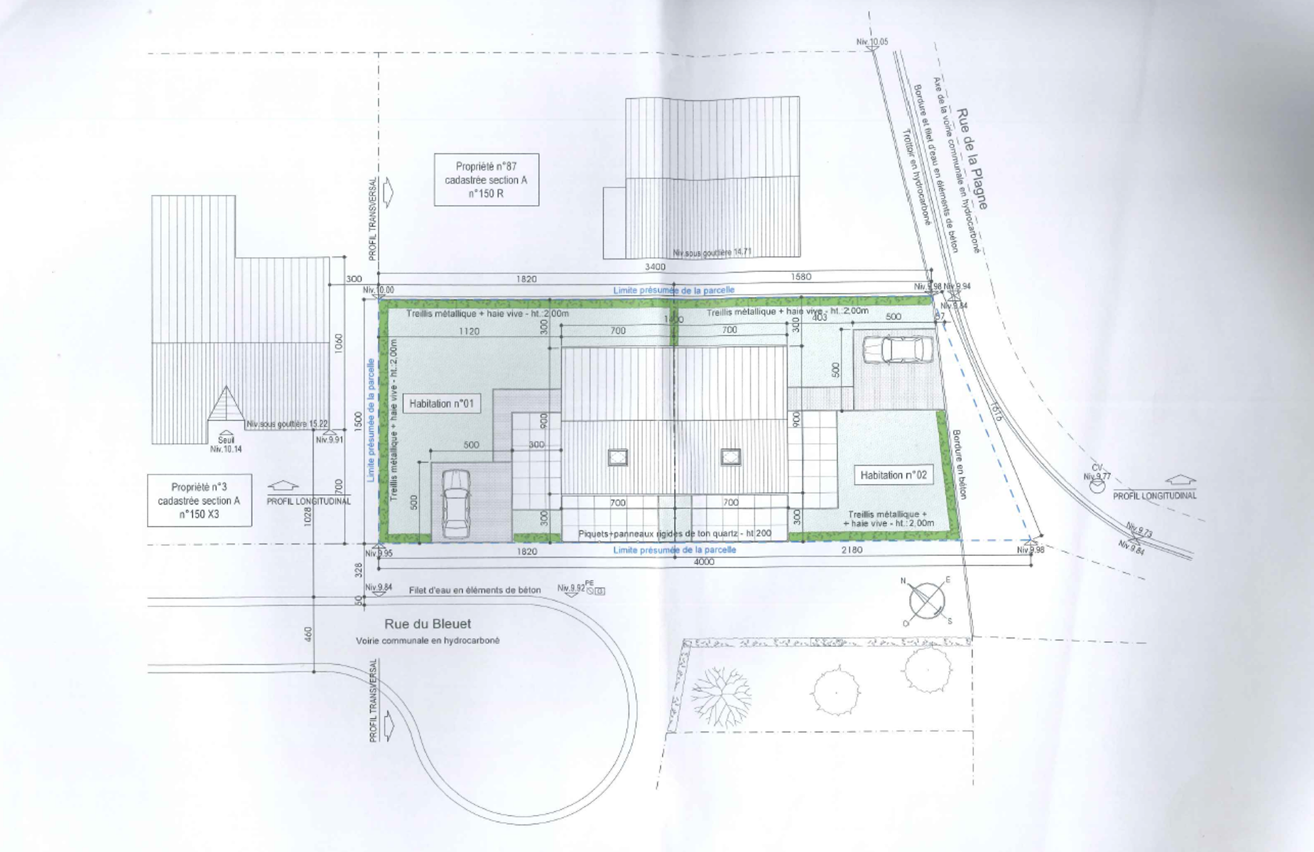
VENDU-La Confiance Immobilière vous présent ce bon terrain à bâtir avec permis accepté en février 2024 pour la construction de 2 maisons unifamiliales, donnant sur 2 rues, situé dans un beau quartier calme et résidentiel, à proximité de toutes commodités ( grands axes, commerces, etc...), cadastré section A numéro 0150HP0000 pour une superficie totale de 5 ares 58 ca, +- 15 m de façade à rue des 2 côtés, une profondeur de part et d'autre de 40 m et 34 m, plans complets disponibles au bureau sur demande au 071/340.340 ou par mail sur info@laconfianceimmobiliere.be.
PRIX : faire offre à 129.000 euros, l'agent n'a aucun pouvoir de décision quant aux offres reçues