VILLA 218 M² HAB. + SOUS-SOL 150 M² 3 à 4 CH 2 SDB GARAGE Châtelet Chatelineau
- VILLA 218 M² HAB. + SOUS-SOL 150 M² 3 à 4 CH 2 SDB GARAGE
- 368 m2
- 3
- 2






















La Confiance Immobilière vous présente cette belle et spacieuse villa de 368 m² (sous-sol compris), construction de 1999 sur un terrain de 10 ares 12 centiares, 3 à 4 chambres possibles, 2 SDB, terrain et grand garage de +89m², construite avec des matériaux de qualité.
COMPOSITION:
Sous-sol (150 m²): en grande partie carrelé composé d'un double garage (1: L=5,2m; l=3,7m; 2: L=14,2m; l=4,9m; H=3,2m) avec 2 grandes portes sectionnelles électriques (camions et camionnettes peuvent entrer) + un pont, cave/réserve (24m²), chaufferie (15,5m²), buanderie avec meuble/ évier (10m²).
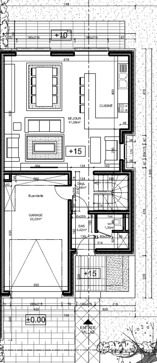
Rez (133 m²) : vaste hall d'entrée (18m²), vestiaire (2,8m²) avec porte coulissante, wc indépendant avec lave-mains (1,8m²), chambre parentale (24m²) avec porte-fenêtre donnant sur une terrasse et salle de bains privative (9,3m²) entièrement carrelée avec wc, meuble double évier et cabine de douche, living (44m²) avec 2 portes fenêtres donnant sur l'extérieur, cuisine équipée avec espace repas (12,5m²) ouverte sur séjour (20m²) et 2 portes fenêtres donnant sur le balcon bétonné avec garde corps (12m²).
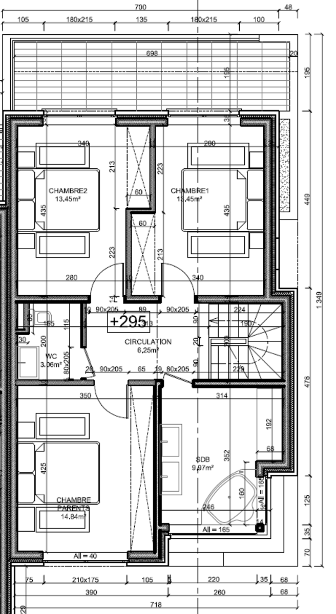
Etage ( 95m²) : hall de nuit (5m²), 2 chambres (20m² + 19m²), 2ème salle de bains (9,7m²) avec meuble évier, baignoire + espace de rangement dans les combles, pièce de séjour (41m²) en mezzanine et vue sur le living, possibilité d'en faire une 4ème chambre ou un grand bureau.
Terrain: espaces parking pour plusieurs voitures (85m²), escalier pour accéder à l'entrée de la villa, terrain latéral avec exposition sud, abri de jardin en bois, terrasse en béton (23m²) donnant sur la chambre parentale, pelouse tout autour de la villa.
Commodités: citerne à eau avec groupe hydrophore; chauffage central mazout; châssis bois DV avec volets électriques en grande partie; toiture en tuiles, bon état général; électricité neuve datant de la construction, compteur intelligent; hourdis béton avec carrelages en marbre partout, y compris les escaliers; portes en verre dans toute la maison, système d'alarme, escalier avec monte personnes pour accéder au rez à partir du sous-sol.
Situation: dans un quartier calme et à proximité de toutes commodités ( R3, route de la Basse-Sambre, autoroutes vers Bruxelles, Namur et Mons).
Convient parfaitement pour une profession libérale, un indépendant (entrepreneur, vendeur de voitures,etc..) ou une grande famille.
RC: 1.462 €.
PEB: E 383 kWh/m².an.
PRIX: offre à partir de 420.000 €.
PEB N° : 20250522008251
E spec : 383 kWh/m².an
E totale : 104728
PEB : E


